contact

urban

Study "Klosbam" in Remerschen

Image 1
Image 2
Image 3
Image 4
Image 5
Image 6
Image 7

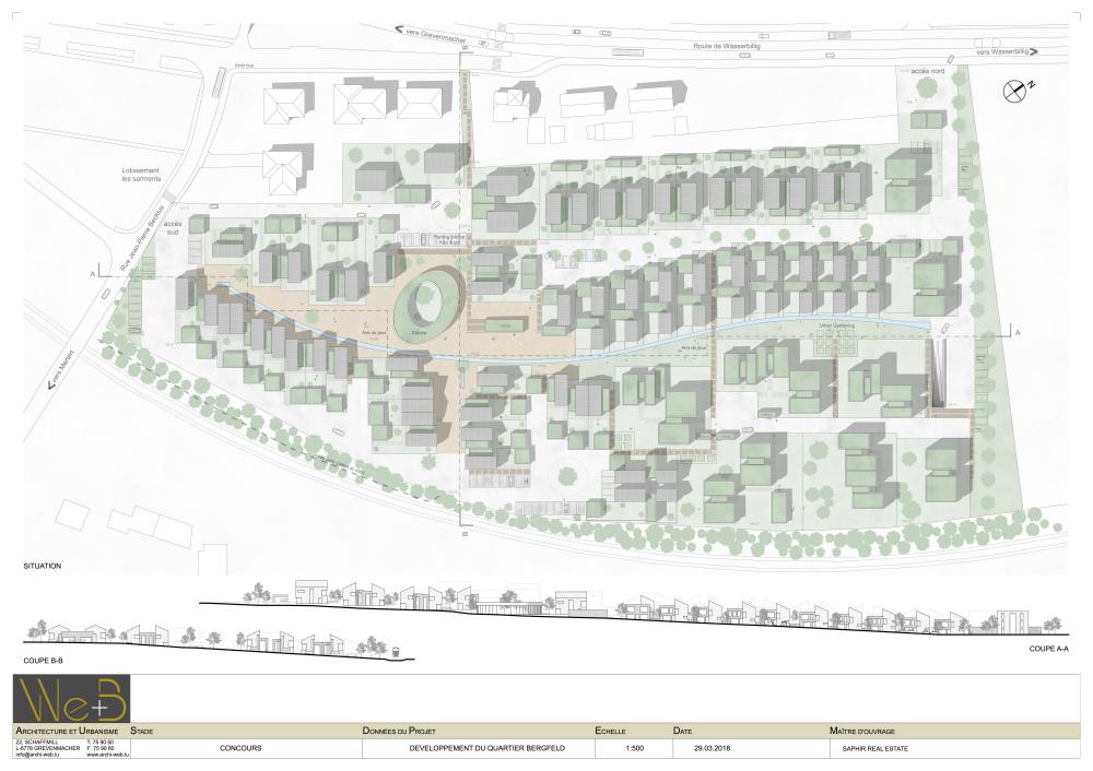
Study PAP Bergfeld in

Wasserbillig

Image 1
Image 2

PAP in Luxembourg-Kirchberg Laangfur

Image 1
Image 2
Image 3
Image 4
Image 5
Image 6

PAP in Schengen

Image 1

PAP in Tandel

Image 1

PAP Paradais in Grevenmacher

Image 1

PAP Zeilewee in Grevenmacher

Image 1

PAP Aal Mauer in Mertert

Image 1

PAP in Wasserbillig Maeschbierg

Image 1

>            x

>            x